Fánk:
Nagyon könnyű. Négy egyenlő sugarú kör érinti egymást, a megfelelő
részeket távolítsuk el metszéssel!
Kilincs:
Az érintők megrajzolásához érdemes bekapcsolni a TRASZTER menüben az
érintők megjelenítését. A nemkívánt rajzrészeket távolítsuk el
metszéssel.
Alátét:
Közepes nehézségű. Érintők gyakorlasára kiváló. A fölső egyenest az
alsó a tükrözésével lehet legkönnyebben megkapni.
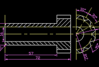
Fogaskerék:
Viszonylag könnyű. A végén a metszésnél spórolhatunk, ha a kis
köröknek már a lemetszett változatával végezzük el a kiosztást.
Vasutikocsi kereke:
Közepes. Érdemes a trapézzal kezdeni, elvégezni a lekerekítéseket,
és azután elvégezni a kiosztást a küllőkre.
Csavarkulcs:
Nehéz. Az igazi nehézséget az jelenti, hogy a csavarkulcs fejének
körívét nem lehet közvetlenül megszerkeszteni, mert nem ismert a
középpontja. Kis gondolkodással azért kitalálható.
Ékszijtárcsa:
Közepes. Gondolkodás és buktatók nélkül végigcsinálható. Sok-sok
klikkelést igényel. Talan arra lehet felhívni a figyelmet, hogy a
sraffozasnál érdemes kikapcsolni a segédvonalakat.
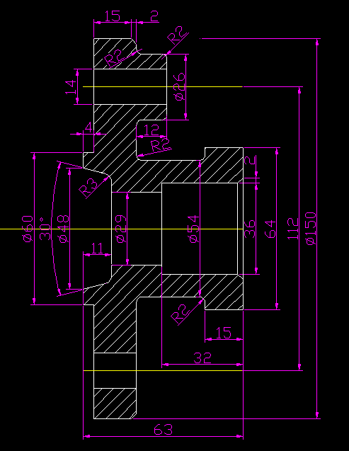
Alkatrész:
Nem nehéz, de oda kell figyelni. A két A-val jelzett félegyenes
metszi ki az ooldalnézeti ábrát (befordított metszet).
Feladat:
2x Tükrözéssel megoldható. Az R9-es és az R18-as lekerekítések
(körök) középpontja ugyanaz. Az Y ágai párhuzamosak.
English








