Készítsük el az alábbi szilárdtesteket! További feladatok találhatók itt.
![]() |
Kiindulási 2D ábra: DWG Célszerű először lemezzé alakítani, elvégezni a kivonást, majd kihúzni. |
![]() |
Elemi testekből halmazműveletekkel hozzuk létre. |
![]() |
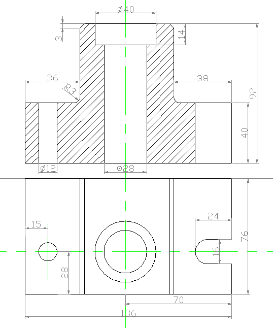
Elemi testekből halmazműveletekkel, vagy a felülnézeti rajzból lemezek definiálásával és kihúzásaikkal hozzuk létre. |
![]() |
A profil megrajzolása után forgassuk körbe (megforgat parancs), majd vonjuk ki a furatokat. A metszést és a szelést nem kell elkészíteni. Méretezés: itt. Kiindulási profil: DWG |
![]() |
Készítsük el a 3D objektumot a 2D metszetek alapján! Szükséges parancsok: csavarvonal, kör, söpör.
Csavarvonal: sugarak 50 egység, fordulatok száma 6, fordulatok magassága 18 egység. Profil sugara 5 egység. |
![]() |
Készítsük el a 3D objektumot a 2D metszetek alapján!
Segítség: |
![]() |
Készítsük el a 3D objektumot a 2D metszetek alapján! |